Residential

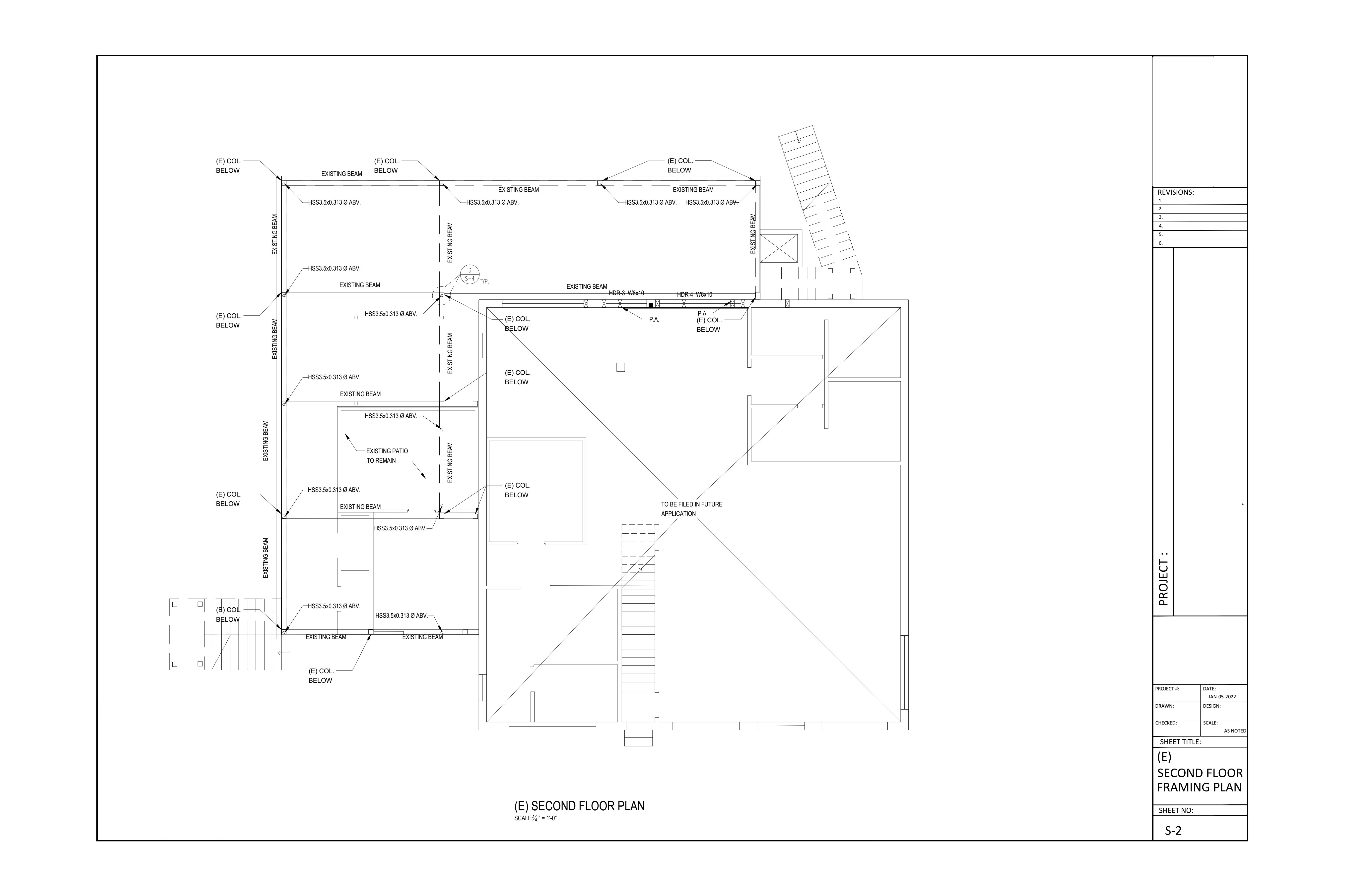
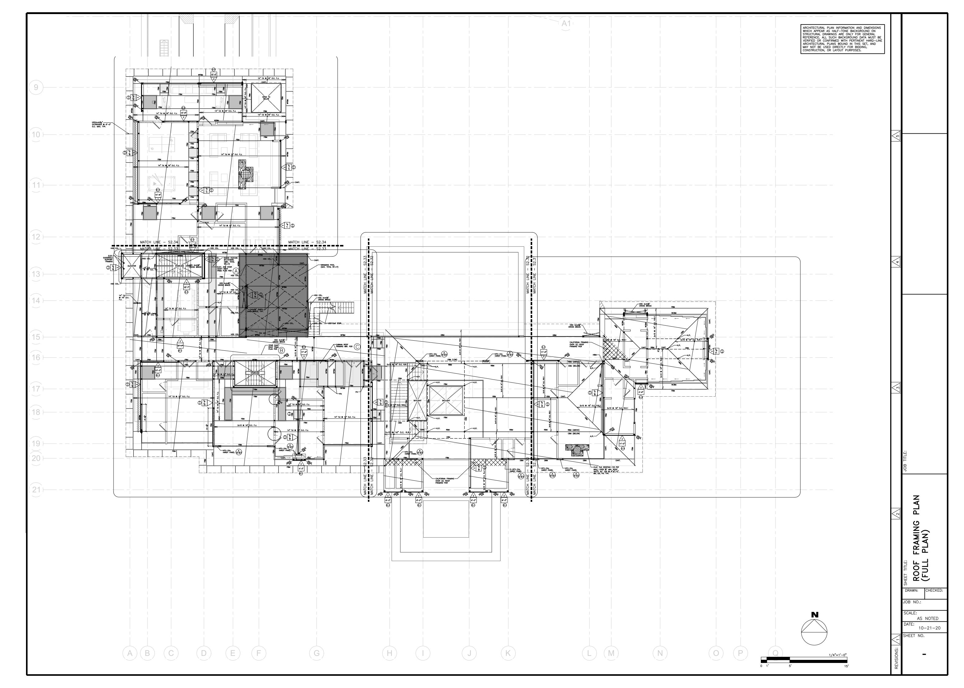
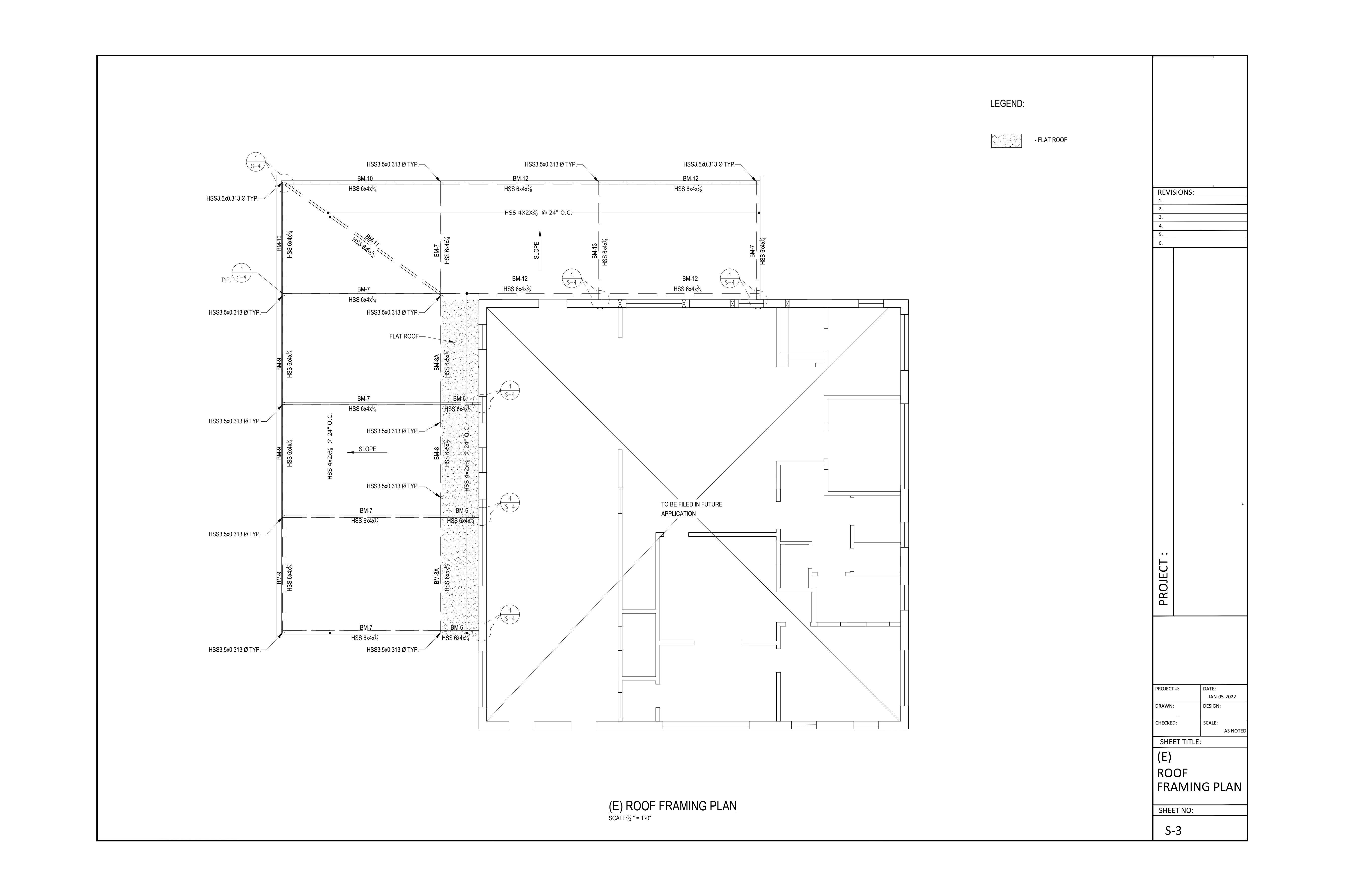
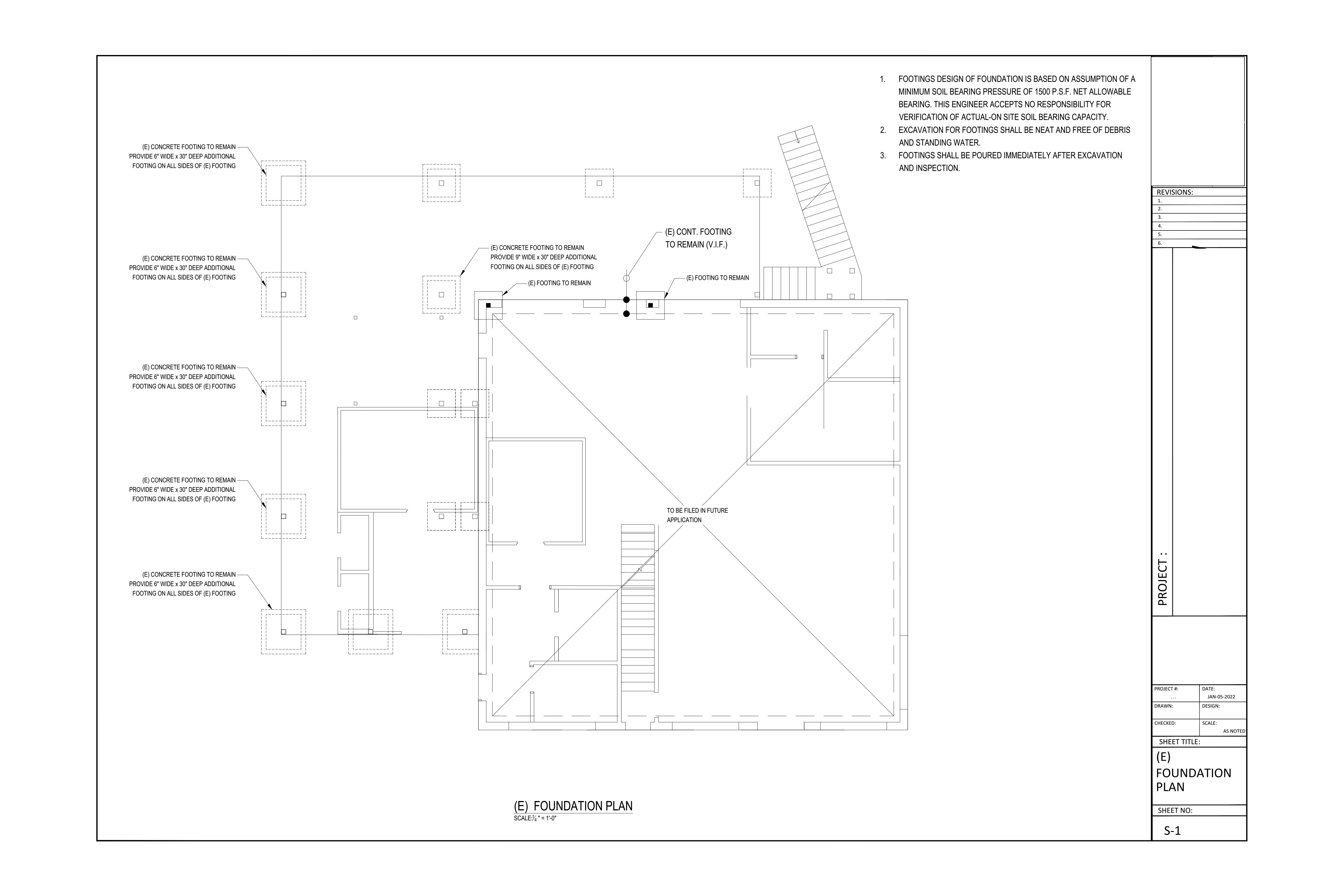
We did structural design for a massive 33,000 sq ft custom high end residence in California. Prominent design challenges included high retaining walls, very large cantilevered sections requiring support of heavy beams.

Commercial

Miscellaneous

This 5 acre theme park project comprised of numerous ponds with aesthetically designed retaining walls. Prominent design challenge were foundation design, retaining walls that prevent slide of heavy rocks and soil erosion and recreation waterways.

CADD Services

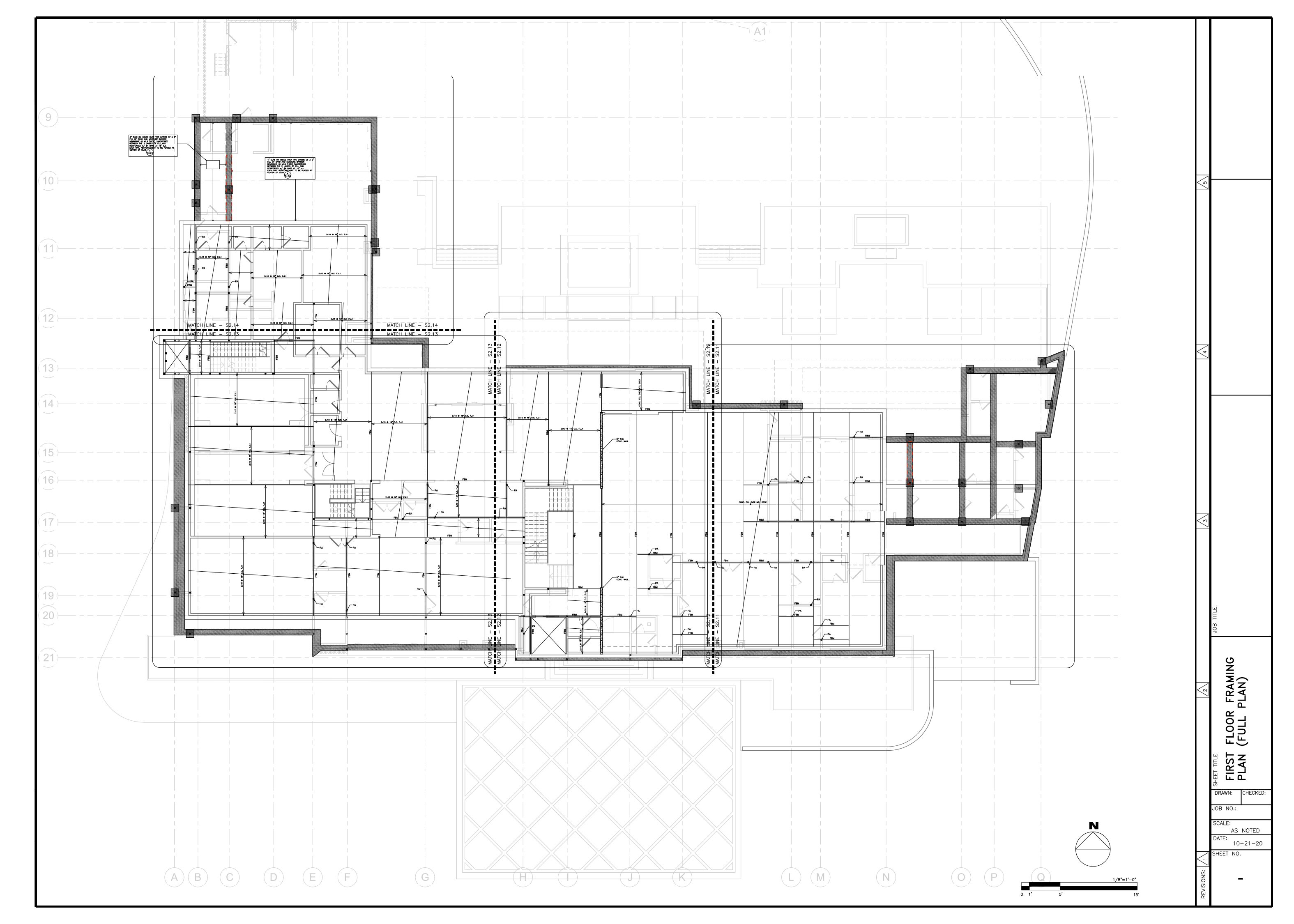
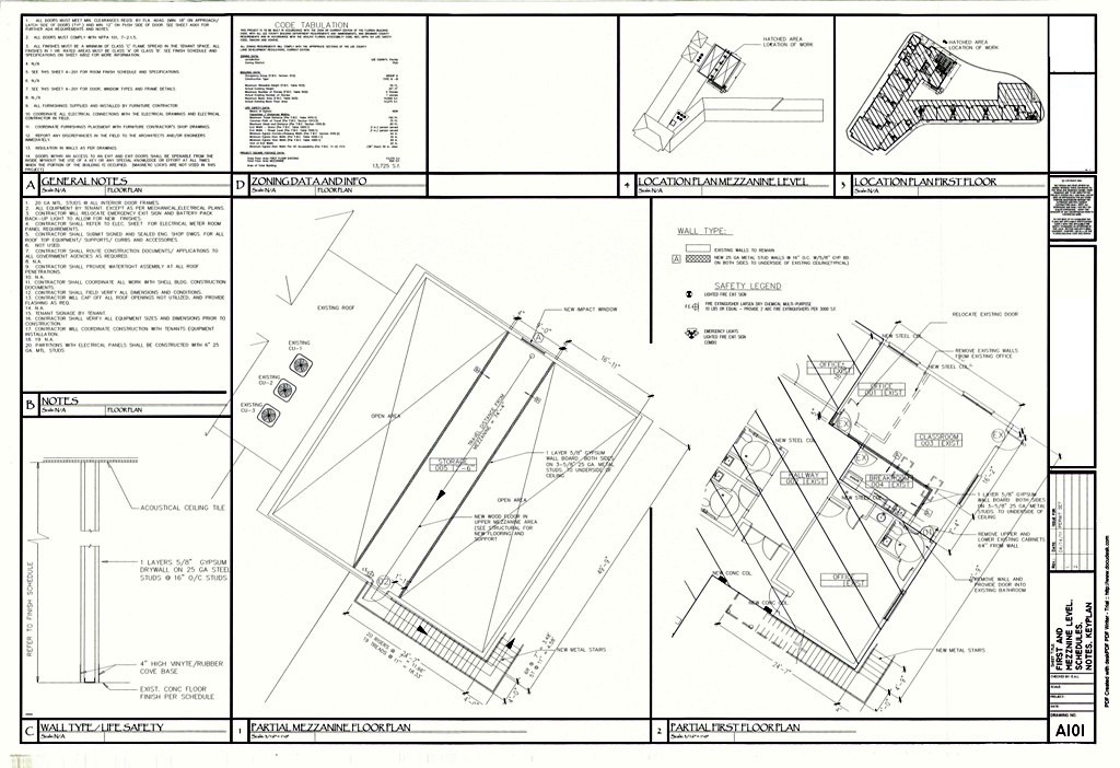
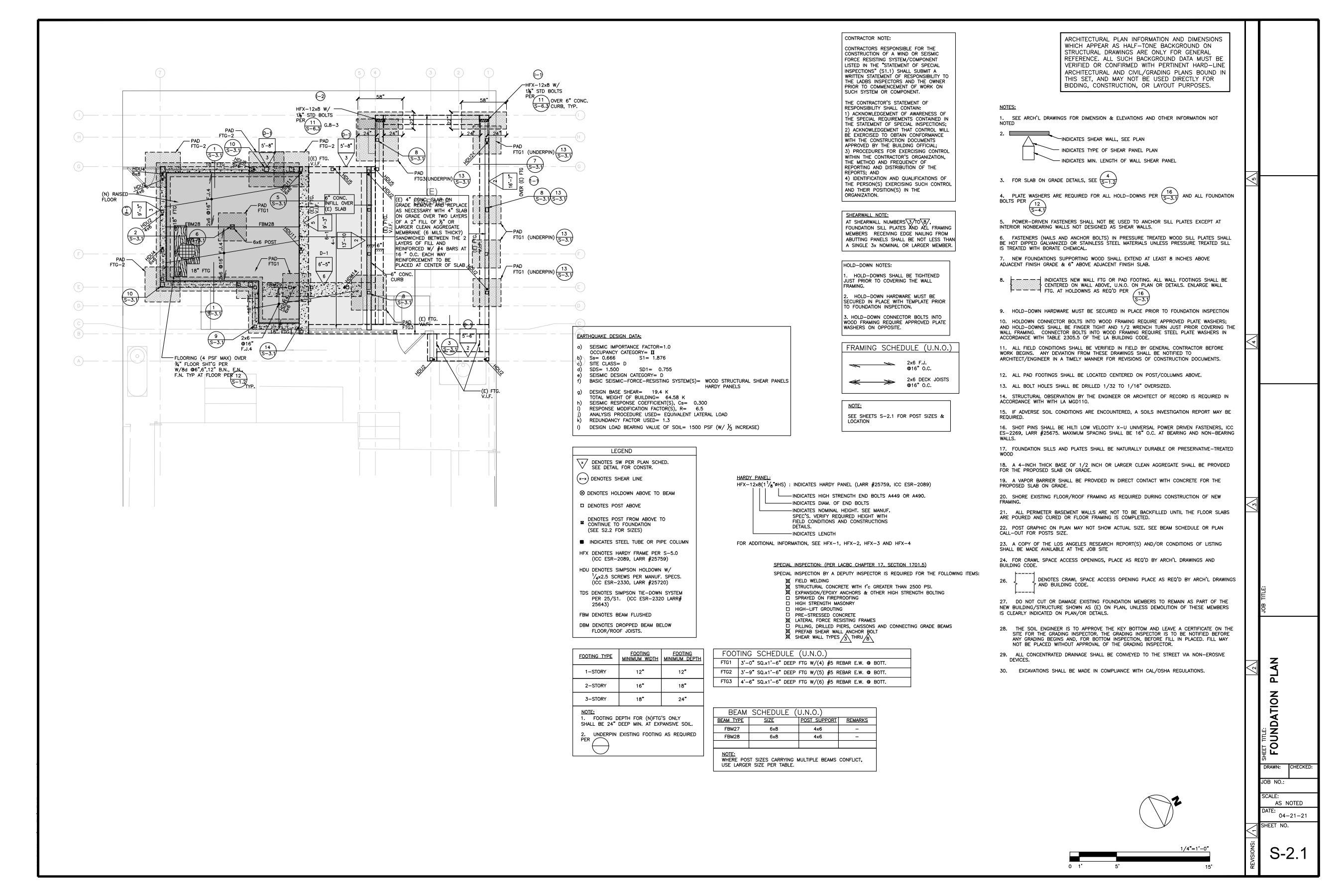
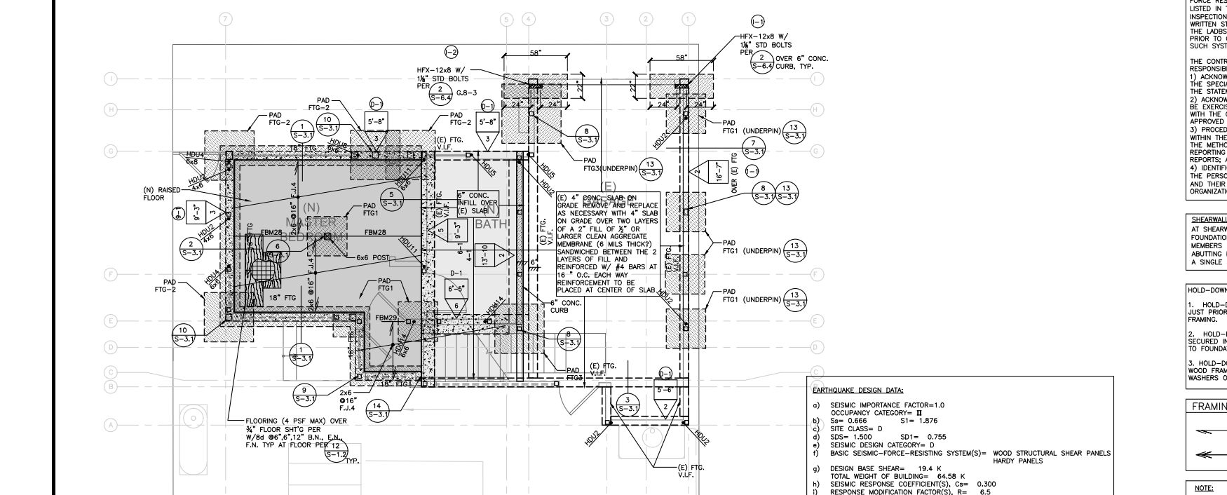
Our structural drafting team is capable of drafting simple to complex drawings, detailing highly intricate details as per the design requirement. We keep AIA layering and other drafting standards in perspective before submissions.

Send Us a Requirement

 

 


For bigger file size, please use File Sharing like Dropbox, Google Drive, SendSpace or Pcloud.